Rif: 104

Antico complesso di trulli e lamie risalente al 1900 con trullo sovrano e terreno circostante.

Comune: Martina Franca
Località: Contrada Miceli
Centro urbano più vicino: Locorotondo 5 km
Stato: Da rinnovare

Distanza dal mare: Costa Adriatica 20 km
Aeroporto più vicino: Brindisi 65 km
Ubicazione: la struttura è ubicata nelle campagne di Martina Franca, ma si trova nel mezzo delle due rinomate contrade di San Marco e la contrada Coreggia ad equa distanza tra le due. Facilmente accessibile da strada asfaltata.
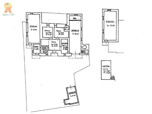
Descrizione: l'immobile comprende un antico complesso di trulli risalente al 1900 e su entrambi i lati ci sono due fabbricati anch’essi in pietra in origine utilizzati come stalle e depositi agricoli. L’abitazione principale è a trulli e comprende tre coni grandi e due coni piccoli, il trullo principale ha anche un'alcova . All'interno dell'abitazione troviamo quindi il soggiorno nell'ampio trullo con alcova e soppalco in pietra con volta a stella al di sopra del quale è presente il trullo soppalcato con accesso dal terrazzo. Dal soggiorno si accede ai due trulli dove si possono creare le due camere da letto, inoltre ci sono altre due stanze e la cucina con camino con porta di accesso al deposito attualmente adibito a ampio salone con cucina e bagno. Dal lato opposto, con accesso indipendente dall’esterno, c'è l'antica stalla con il fienile al piano superiore. Sul fronte destro del fabbricato troviamo l'accesso alla cantina in pietra con volte a botte.
Condizioni: l’abitazione e il deposito sono abitati dai proprietari durante il periodo estivo. Nel complesso la struttura è in buone condizioni e nell’abitazione principale sono presenti in alcune stanze i pavimenti originali in chianche e in una stanza le cementine di inizio del secolo scorso. Una ristrutturazione è necessaria per quanto riguarda gli impianti e la rimozione dell'intonaco per avere la pietra a vista, con il recupero delle porte originali della parte abitativa. A seconda della destinazione che si vuole dare a questa grande proprietà si può optare per una abitazione con garage e dependance oppure qualora fosse consentito il cambio d'uso, una struttura ricettiva intera o da dividere in più unità abitative.
Utenze: sono presenti gli impianti di luce, acqua e riscaldamento che necessitano di adeguamento alle normative vigenti oltre all'installazione di una fossa Imhoff. Per quanto riguarda l’acqua sono presenti delle antiche cisterne oltre all’allaccio diretto con l’acquedotto rurale. In tutti gli ambienti è presente l’impianto di riscaldamento con i termosifoni alimentati da una caldaia a gas.
Terreno: la proprietà è posta al centro di un terreno di circa 5.000 metri in parte boschivo e parte piantumato con alberi da frutto.
Spazi esterni: la proprietà è interamente recintata con muretti a secco. Sul fronte dell'abitazione vi è un ampio piazzale da pavimentare, un’antica aia e un deposito.
Prezzo: Euro 295.000
Energetic Class: G