Rif: 117

Graziosa struttura con trulli, lamie e pineta antistante.

Guarda Video
Comune: Martina Franca
Località: Strada Pasqualone
Centro urbano più vicino: Martina Franca 2 km
Stato: Da rinnovare

Distanza dal mare: Torre Canne 30 km
Aeroporto più vicino: Brindisi 64 km
Ubicazione: nelle campagne di Martina Franca, situata a ridosso di una strada secondaria, a soli 2 km dal paese.
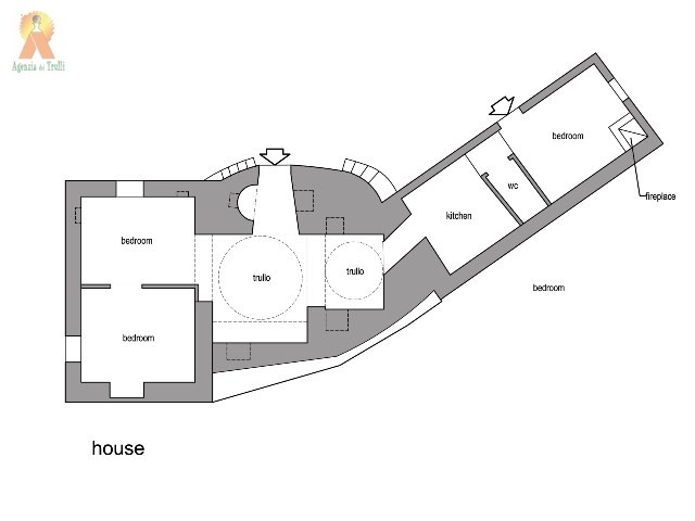
Descrizione: l'immobile comprende due trulli centrali e due lamie situate ai lati dei trulli. Nei trulli è stato realizzato il soggiorno, nella prima lamia troviamo la cucina, il bagno e una camera con camino, nella seconda lamia ci sono due camere, di cui una di passaggio.
Condizioni: la parte esterna dei coni è coperta di cemento che andrebbe rimosso per ripristinare il manto di chiancarelle originali. All'interno i coni sono in buone condizioni e vi è la pietra a vista. Il resto dell’abitazione è in discrete condizioni, ma necessita di interventi di manutenzione straordinaria per quel che concerne gli impianti e gli infissi. Per quanto riguarda gli intonaci esterni ed interni occorrono interventi di manutenzione ordinaria.
Utenze: l'abitazione è fornita di allaccio elettrico e cisterna per l'approvvigionamento idrico. Occorre installare la fossa biologica ed eventualmente il riscaldamento/raffreddamento.
Terreno: terreno boschivo pertinenziale di circa 7.000 mq per lo più piantumato con alberi di pino e querce.
Spazi esterni: Doppio accesso di ingresso privato di cui uno pedonale e uno carrabile, oltre a piazzale antistante al fabbricato.
Prezzo: Euro 79.000
Energetic Class: G